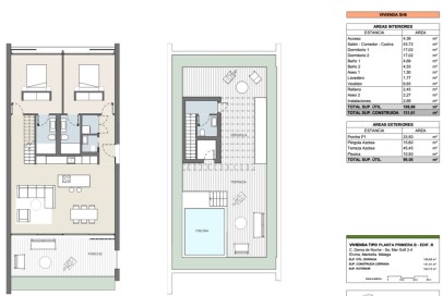
- Powierzchnia
- 108,66 m2
- Sypialnie
- 2
- Basen
- Tak
- Miejsce parkingowe
- Tak
- Numer oferty
- 351/15982/OMS
Opis
Naturalny Eden w sercu Marbelli - Elvira
Ten ekskluzywny kompleks boutique obejmuje 21 luksusowych rezydencji, stworzonych w pełnej harmonii z otaczającą przyrodą. To idealne miejsce dla osób poszukujących spokoju, balansu i życia w bliskości z naturą – przestrzeń, w której architektura spotyka się z krajobrazem, tworząc oazę relaksu.
Dostępne jednostki
- Łącznie: 21 rezydencji
- Aktualnie dostępne: 5 rezydencji
- Sypialnie: 2 lub 3
- Ceny: od 850.000 €
- Status: w budowie
Lokalizacja – Elviria, Marbella
Kompleks położony jest w prestiżowej dzielnicy Elviria, znanej z luksusowych willi, spokojnego klimatu i bujnej roślinności. W pobliżu znajdują się liczne restauracje, bary, sklepy oraz wszystkie niezbędne usługi.
Elviria słynie także z jednych z najlepszych plaż Marbelli, z bogatą ofertą chiringuitos, klubów plażowych i sportów wodnych. W niewielkiej odległości leżą renomowane pola golfowe, takie jak Cabopino, Santa María, Santa Clara czy Río Real. Tropikalne ogrody, charakterystyczne dla tej części Marbelli, dodatkowo potęgują atmosferę prywatności i relaksu.
Styl życia i udogodnienia:
Cała przestrzeń została zaprojektowana tak, aby sprzyjała harmonii i zdrowemu stylowi życia.
Wśród udogodnień dla mieszkańców znajdziesz:
- ogrody śródziemnomorskie i ścieżki spacerowe,
- ściany roślinne z lokalną florą,
- prywatny mostek prowadzący do strefy wellness,
- centrum odnowy biologicznej z sauną, hammamem, siłownią i przestrzenią fitness na świeżym powietrzu.
Jakość i wykończenie
Projekt łączy nowoczesny design z poszanowaniem środowiska naturalnego. Wszystkie domy posiadają:
- energooszczędność klasy A potwierdzoną certyfikatem BREEAM Muy Bueno,
- układ open space z salonem, jadalnią i kuchnią o szerokości nawet 12 metrów,
- pełne przeszklenia od podłogi do sufitu, zapewniające naturalne światło i przewiewność,
- prywatny basen i rozległe tarasy,
- luksusowe detale: gres wielkoformatowy, balustrady szklane, materiały i instalacje eco-friendly.
To wyjątkowe miejsce oferuje nie tylko luksus, ale także nowoczesny, ekologiczny styl życia w jednej z najbardziej pożądanych lokalizacji Marbelli.
Dodatkowe informacje
- Winda
- Nie
- Garaż/Miejsca parkingowe
- Tak
- Dostępne w okolicy
- Basen
