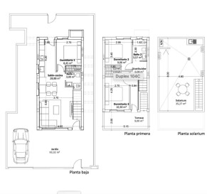
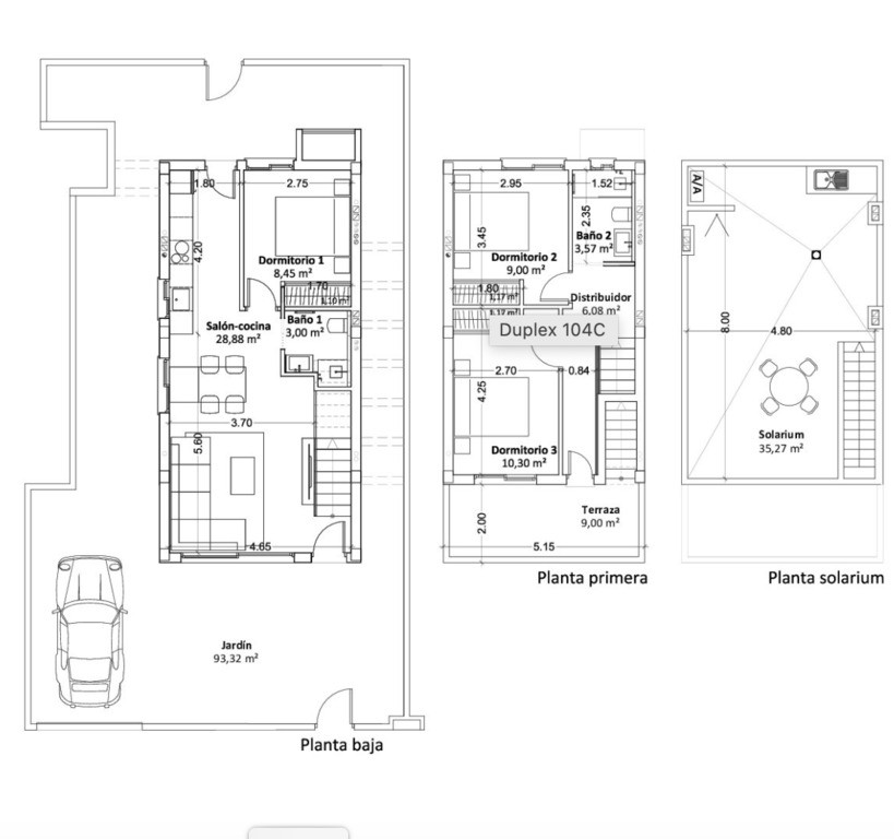
- Powierzchnia
- 95,79 m2
- Pow. działki
- 292,16 m2
- Sypialnie
- 3
- Basen
- Tak
- Numer oferty
- 15/15982/ODS
Opis
Willa znajduje się na zamkniętym osiedlu gdzie znajduje się przestronny wspólny basen.
Nieruchomości wyposażone są standardowo w sprzęt AGD (lodówka, pralka, piekarnik, okap, płyta grzewcza)
Kompleks znajduje się w odległości krótkiego spaceru od pięknej przystani w Torre de la Horadada i plaży.
Torre de la Horadada to małe nadmorskie miasteczko, ale ze wszystkimi niezbędnymi udogodnieniami, takimi jak supermarkety, centrum medyczne i dwa główne place, Pueblo Latino i The Square, gdzie znajduje się wiele restauracji i barów. Nazwa miejscowości pochodzi od imponującej wieży strażniczej zbudowanej w 1591 roku.
Dostępność :
Wiosna 2026
Dodatkowe informacje
- Dostępne w okolicy
- Basen
