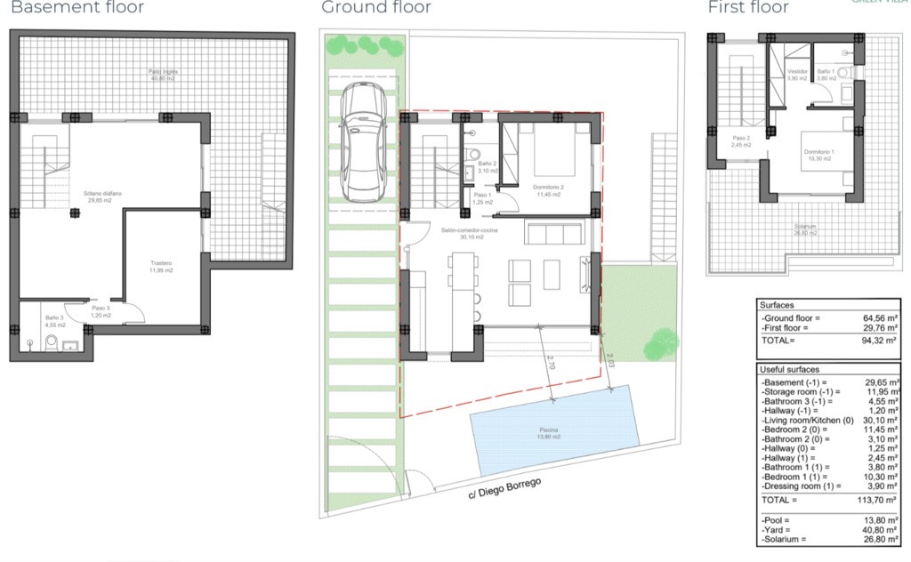
- Powierzchnia
- 94,32 m2
- Pow. działki
- 225 m2
- Sypialnie
- 3
- Basen
- Tak
- Numer oferty
- 38/15982/ODS
Opis
Położona w prestiżowej i prywatnej lokalizacji, ta wyjątkowa willa zapewnia spokojny styl życia, jednocześnie oferując bliskość niezbędnych usług i udogodnień.
Niezależnie od tego, czy chcesz zrelaksować się przy prywatnym basenie, cieszyć się zielenią własnego ogrodu, czy skorzystać z pobliskich atrakcji rekreacyjnych i pól golfowych, ten dom oferuje idealną równowagę między prywatnością a komfortem.
Wyjątkowa przestrzeń dopasowana do Twoich potrzeb
Ta luksusowa, indywidualnie zaprojektowana willa łączy elegancję i wygodę.
Nieruchomość obejmuje:
• 2 przestronne sypialnie,
• prywatny basen,
• pięknie zaprojektowaną piwnicę,
• urokliwy ogród, który zapewnia idealne miejsce na odpoczynek.
To doskonała propozycja dla osób poszukujących harmonii, komfortu i ekskluzywnego stylu życia.
Dodatkowe informacje
- Dostępne w okolicy
- Basen
