- Powierzchnia
- 197,51 m2
- Pow. działki
- 207,51 m2
- Sypialnie
- 3
- Basen
- Tak
- Numer oferty
- 10/15982/ODS
Opis
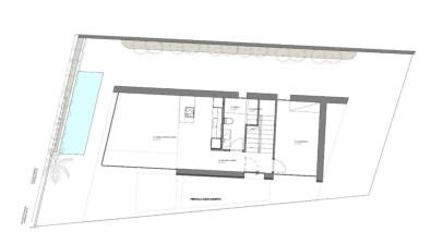
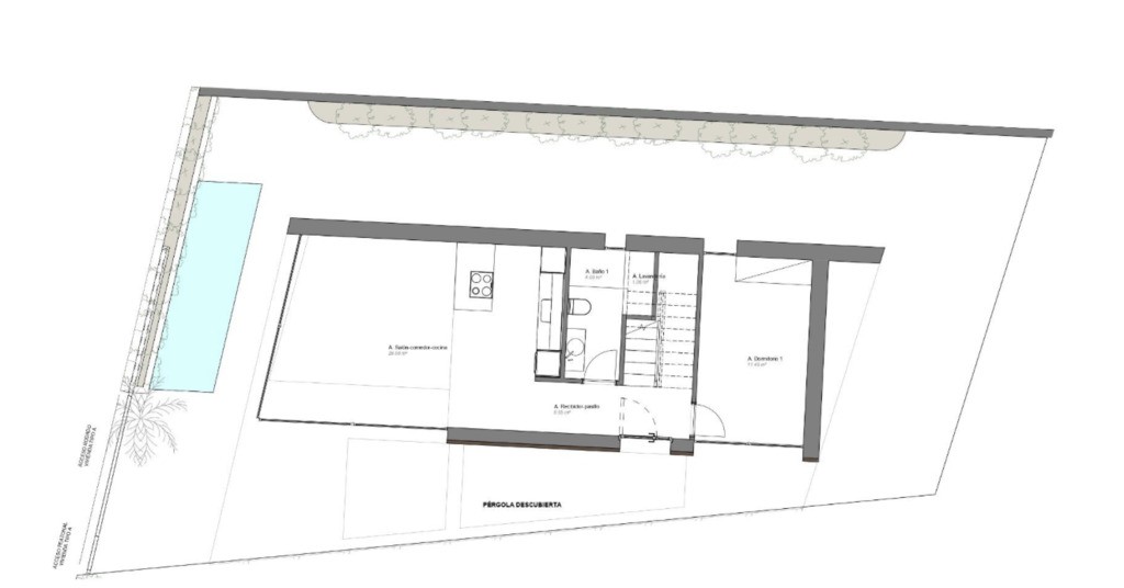
Luksusowy kompleks składający się z 4 willi, z prywatnym basenem w każdej nieruchomości.
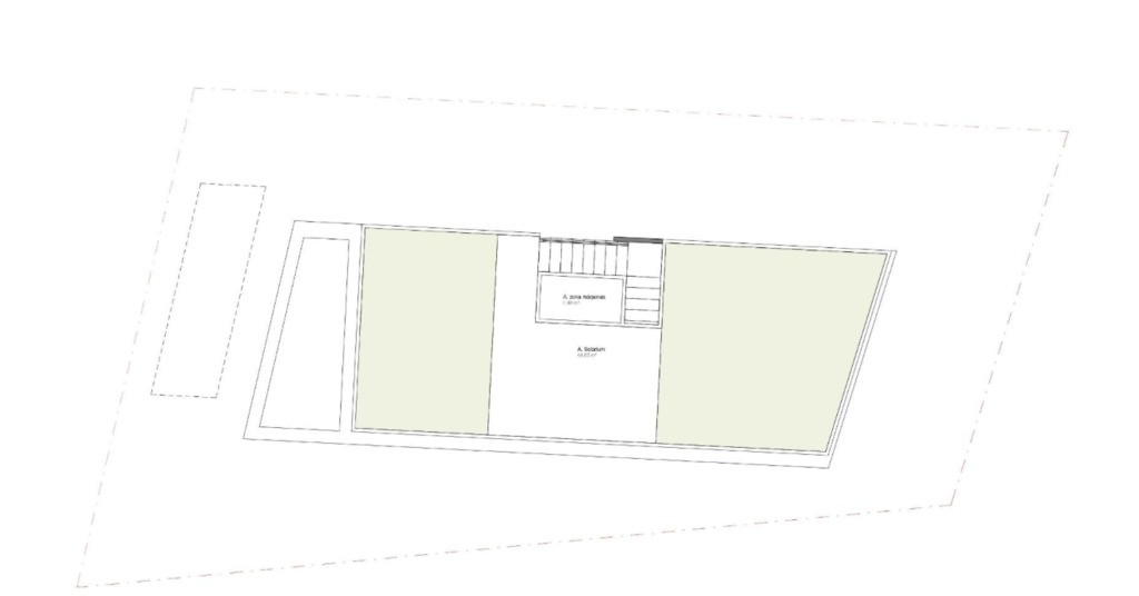
Każda z willi posiada tarasy oraz przestronne solarium, co pozwala cieszyć się słońcem o każdej porze dnia.
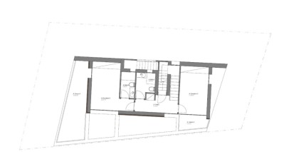
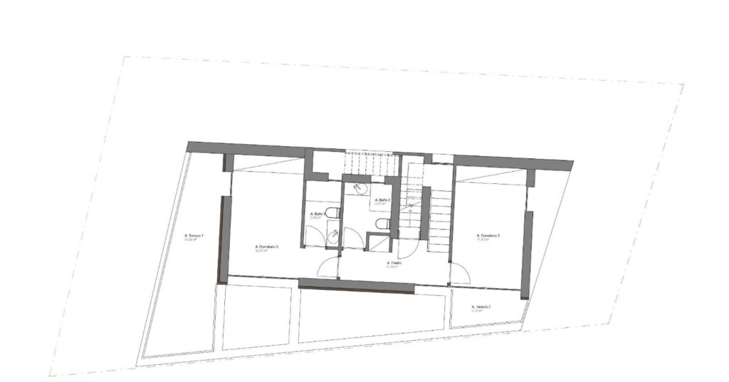
Każda nieruchomość posiada 3 sypialnie i 3 łazienki.
Wille zostały zaprojektowane na dwóch poziomach, oraz solarium na najwyższym piętrze
Kompleks znajduje się w Torre de la Horadada (Alicante), w otoczeniu pełnej infrastruktury usługowej i obiektów sportowych, w pobliżu kilku pól golfowych, a także zaledwie 300 m od plaż Morza Śródziemnego.
Wille spełnią najwyższe standardy i będą wyposażone w:
- Prywatny basen z oświetleniem wewnętrznym i prysznicem zewnętrznym.
- W pełni umeblowaną i wyposażoną kuchnię z lodówką do zabudowy, zmywarką, piekarnikiem, okapem i płytą grzewczą.
- Oświetlenie wewnętrzne (salon, kuchnia, korytarze i łazienki) oraz w przestrzeniach zewnętrznych.
- Rolety elektryczne i podstawowy system inteligentnego domu do zarządzania systemami elektronicznymi.
- Wbudowaną szafę z wykończonym wnętrzem w każdej sypialni.
- W pełni wyposażone łazienki z szafką pod umywalką, toaletą podwieszaną z wbudowanym zbiornikiem, lustrem, prysznicem oraz szklanymi ściankami prysznicowymi.
- System klimatyzacji z kanałami wentylacyjnymi.
- Przygotowanie instalacji na zewnętrznego grilla na solarium.
- Solarium.
Dostępne od lutego 2025
Dodatkowe informacje
- Dostępne w okolicy
- Basen
